Amish Built Cabins
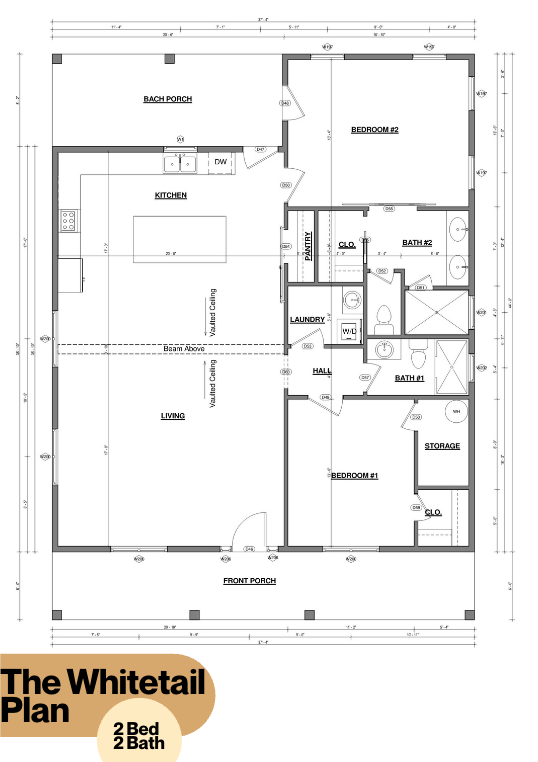
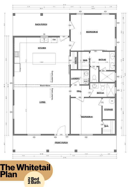
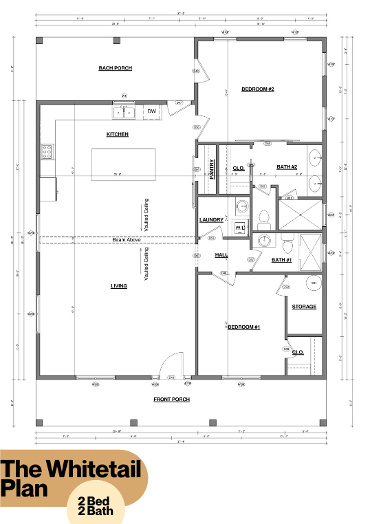
The Whitetail Barndominium House Kit
The Whitetail Barndominium House Kit
Couldn't load pickup availability
Share
### What's Included in a Barndominium House Kit?
When you purchase a barndominium house kit, you receive:
- **26-gauge metal exterior shell** (no windows or doors included)
- **26-gauge metal roof**
- **Engineered blueprints and floor plans** up to code for your state and county, ready for your general contractor
- **Installation of the shell** on your foundation
Please note that **site preparation** such as dirt work, land prep, septic systems, electrical, and plumbing are not included in this package. The price strictly covers the metal shell, blueprints, and installation of the shell.
We proudly offer this barndo house kit with **shipping and installation across all 50 states**. If you have any questions or are ready to place an order, feel free to contact us at **502-298-8946**. Due to high demand, current turnaround times are approximately **12 to 16 weeks**.
**Porches are not included** in the base price but are available upon request. If you're interested in adding a porch, simply ask your sales representative for pricing details when you call.
