Amish Built Cabins
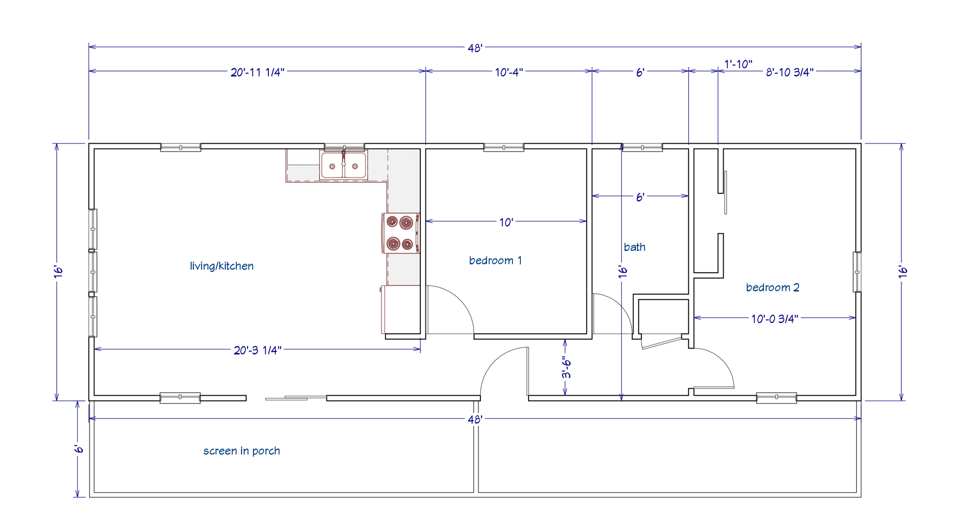
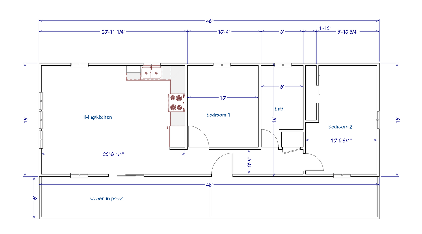
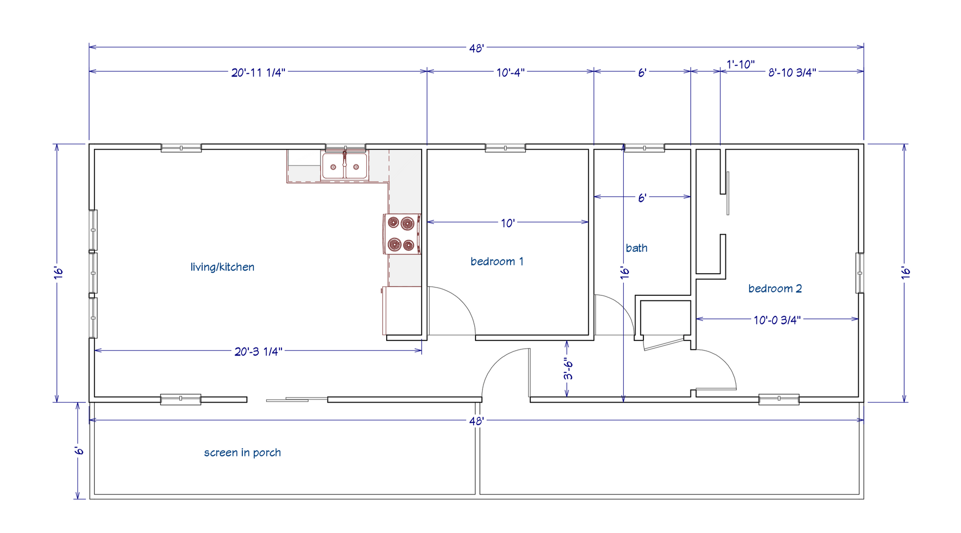
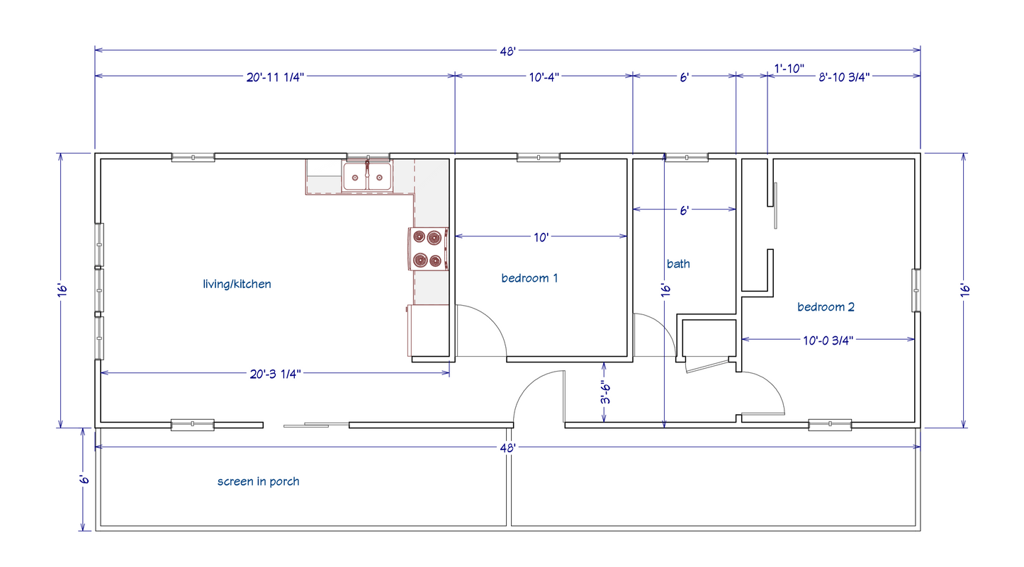
Plan #204 – 2 Bed, 1 Bath Ranch Cabin | 1 Story with Huge Covered Porch (768 Sq Ft + Porch)
Plan #204 – 2 Bed, 1 Bath Ranch Cabin | 1 Story with Huge Covered Porch (768 Sq Ft + Porch)
Couldn't load pickup availability
Share
Welcome to Plan #204, our spacious 1-story ranch-style cabin featuring a smart 16' x 48' layout with 768 sq ft of living space—plus a beautiful 6’ x 48’ covered front porch perfect for relaxing, entertaining, or enjoying the view.
This 2 bed, 1 bath layout offers the perfect blend of simplicity and comfort, ideal for permanent living, weekend escapes, or income property. Choose from a rustic or modern finish—both handcrafted by our skilled Amish builders.
🌟 Now Starting at Just $140,900!
(Regularly $150,900 – limited-time savings)
Price is turnkey and ready to go, excluding shipping and code-specific upgrades based on your state. Call for a custom quote.
Solid. Stylish. Built to last. Plan #204 is your new home, getaway, or rental winner—Amish made with pride.
📞 Call 800-513-1675 today to reserve yours or get more information!
