Amish Built Cabins
The Tesla Retreat House Kit - Home Kit
The Tesla Retreat House Kit - Home Kit
Couldn't load pickup availability
Share
Tesla Retreat House Kit – 1,663 Sq Ft 3-Bedroom, 2-Bathroom Modern-Style Bungalow
The Tesla Retreat House Kit offers 1,663 sq ft of living space, featuring 3 bedrooms, 2 bathrooms, and a contemporary, clean design. This modern-style bungalow emphasizes open spaces, sleek lines, and a minimalist aesthetic, perfect for those seeking a stylish and energy-efficient home.
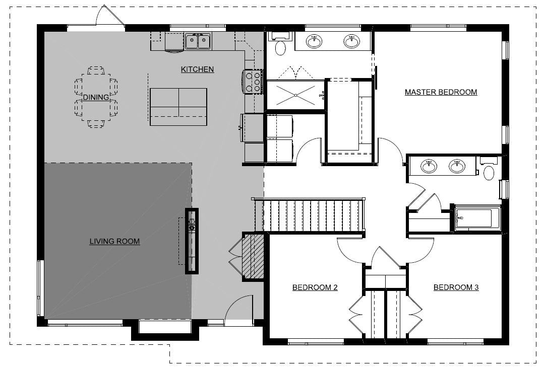
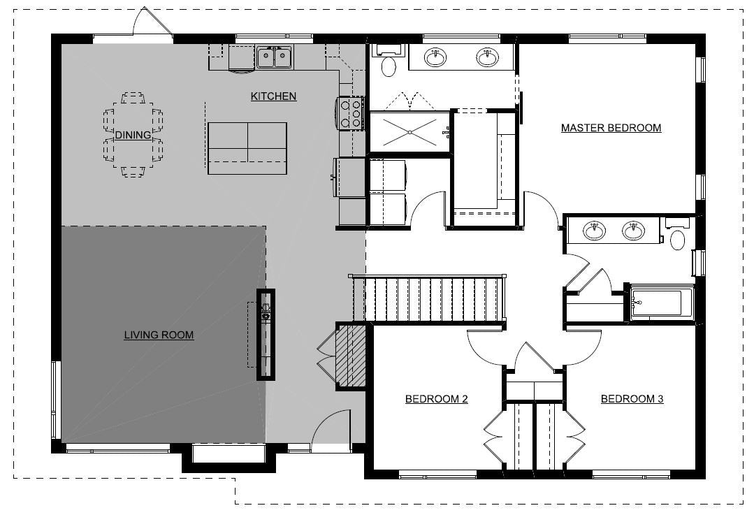
Floor Plan
1,663 SQ. FT.
32'-0" W x 50'-0" D
- Living Room: 15'-8" x 16'-8"
- Kitchen: 12'-4" x 14'-0"
- Dining: 11'-0" x 14'-0"
- Master Bedroom: 13'-6" x 13'-0"
- Bedroom #2: 9'-10" x 11'-0"
- Bedroom #3: 9'-10" x 11'-0"
Key Features
- Pre-cut trusses, panelized walls, roof trusses, windows, shingles, insulation, drywall, and delivery included.
- Customizable floor plans.
- Built to meet local codes for wind, snow, and hurricane resistance.
For turnkey services or contractor referrals, contact us today.
Turnaround Times and Support
Turnaround time is 14 to 16 weeks. For inquiries, call 502-298-8946 or fill out our contact form for a response within 24 to 48 hours.
Explore Our Home Plans
Browse our extensive selection of home plans, ranging from cozy cottages to expansive designs up to 4,750 sq ft!
SEE FLOOR PLANS AND RENDERINGS BELOW OF A RECENT CUSTOMERS BUILD TO SEE WHAT THE POTENTIAL OF THIS BEAUTIFUL HOUSE KIT LOOKS LIKE WHEN ITS FULLY BUILT!
