Amish Built Cabins
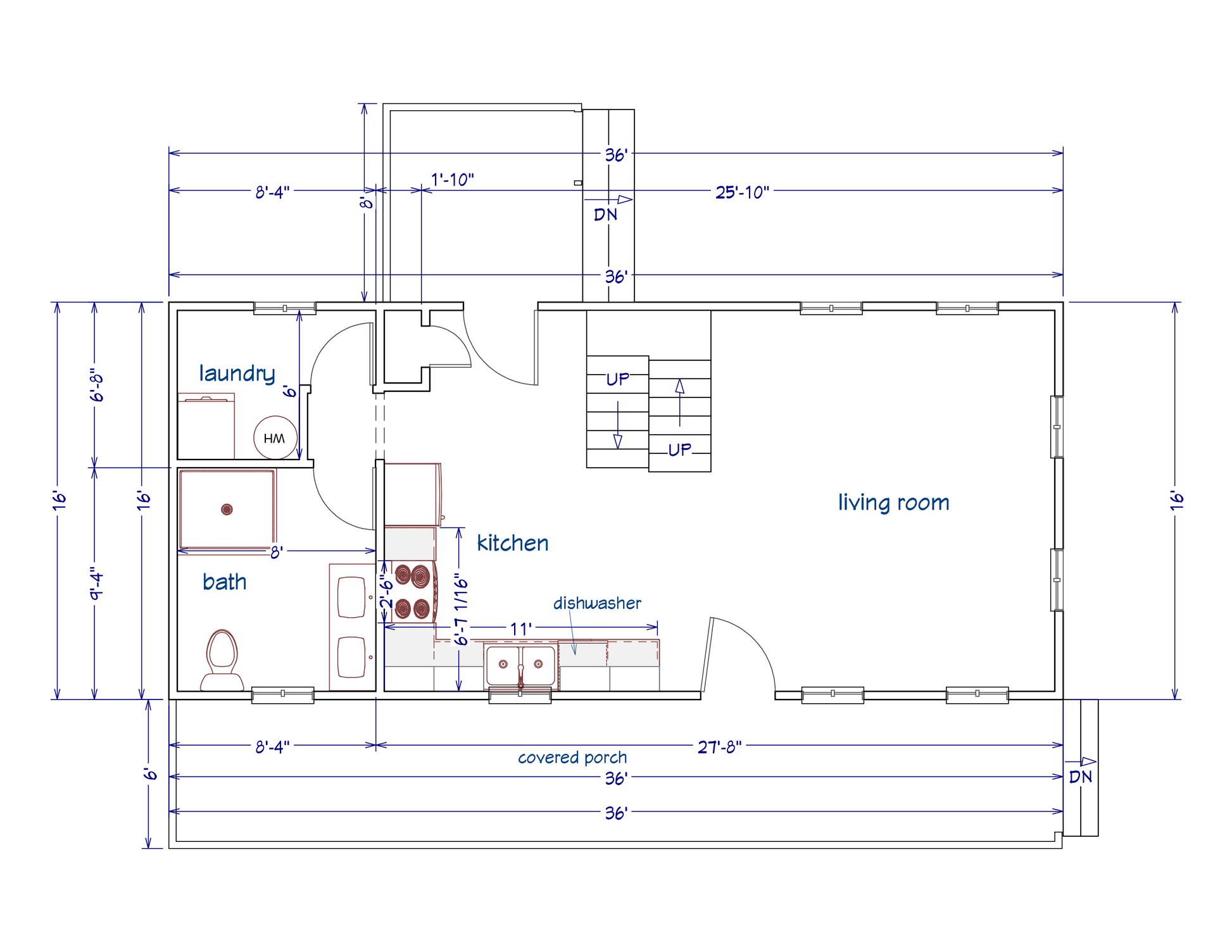
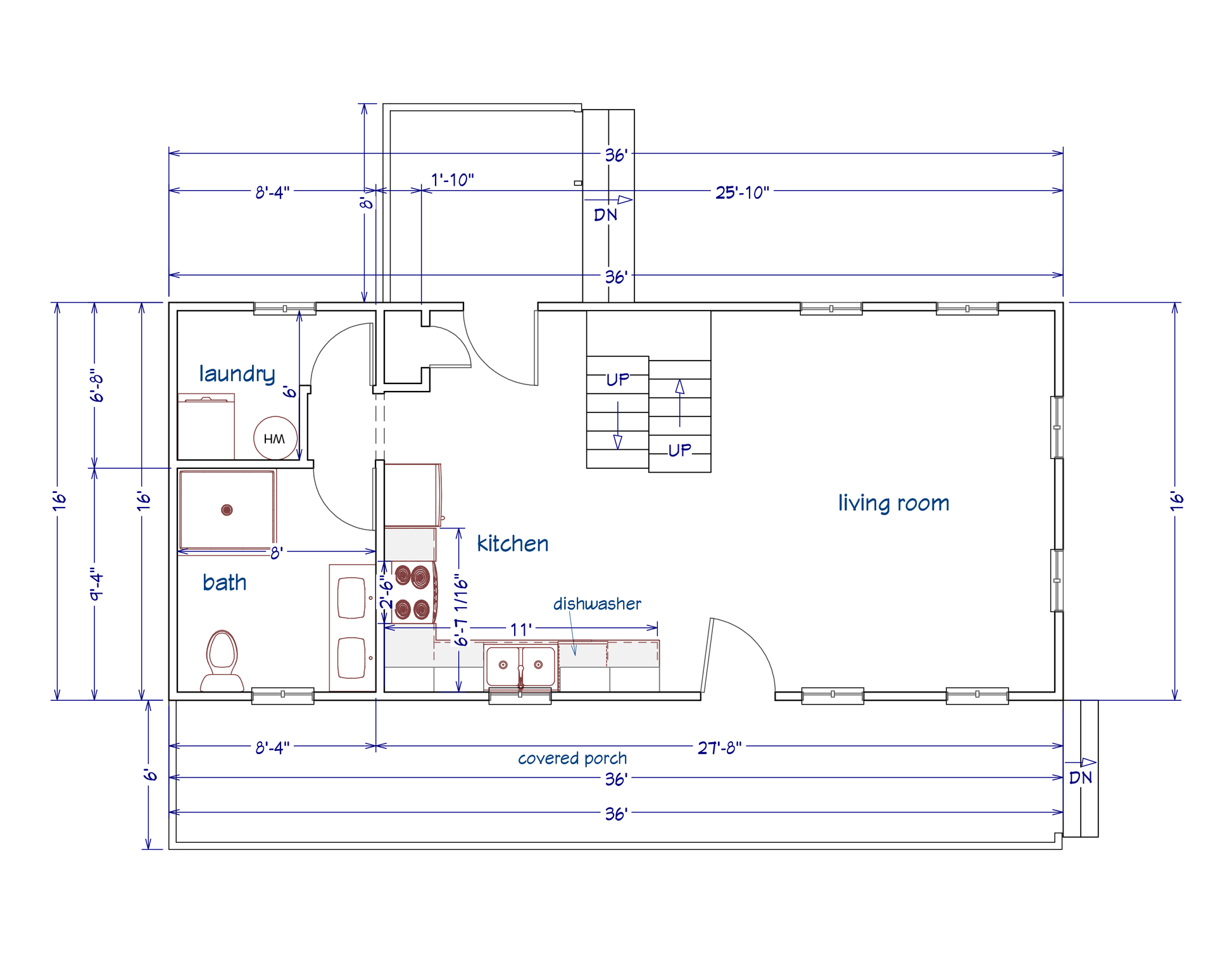
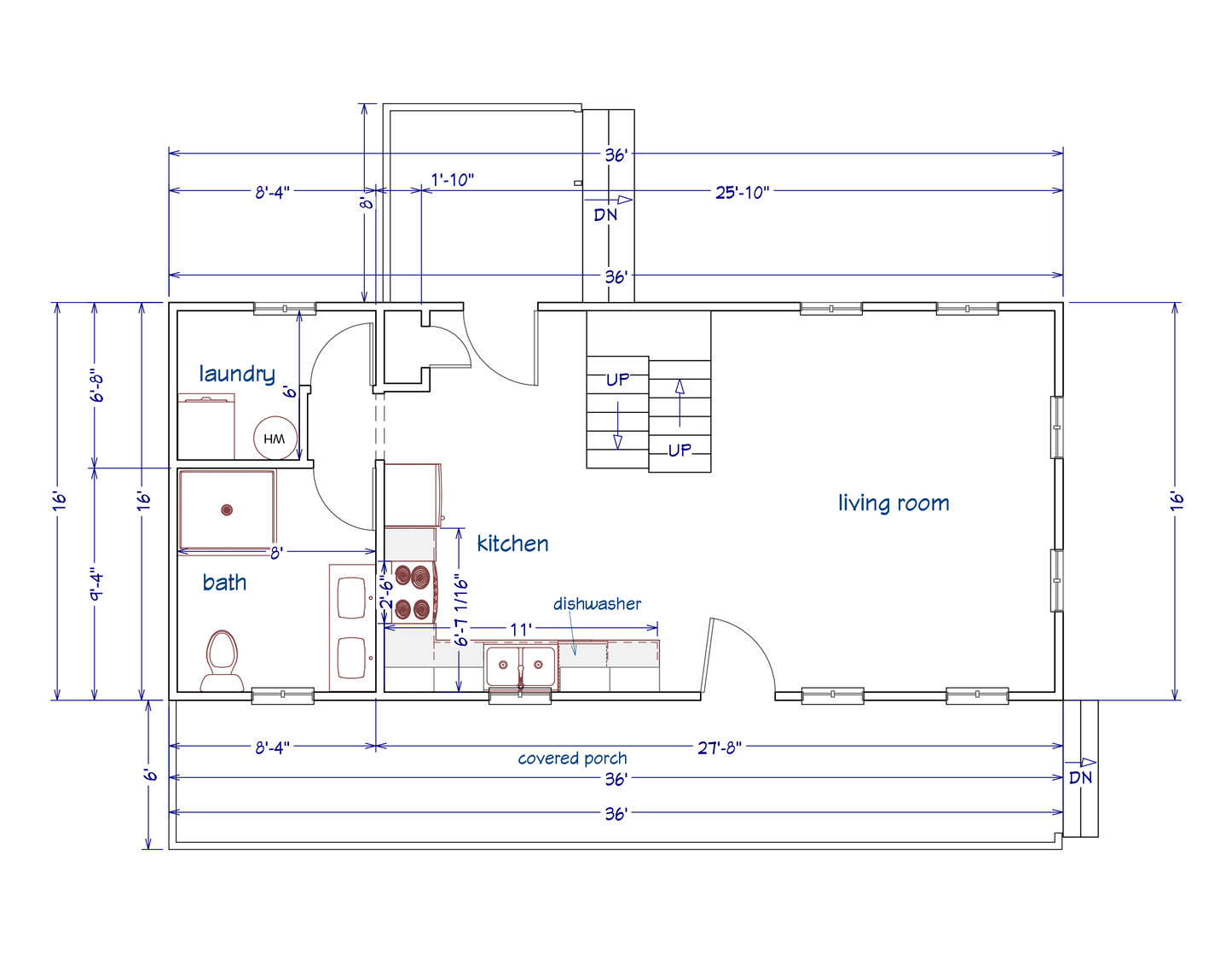
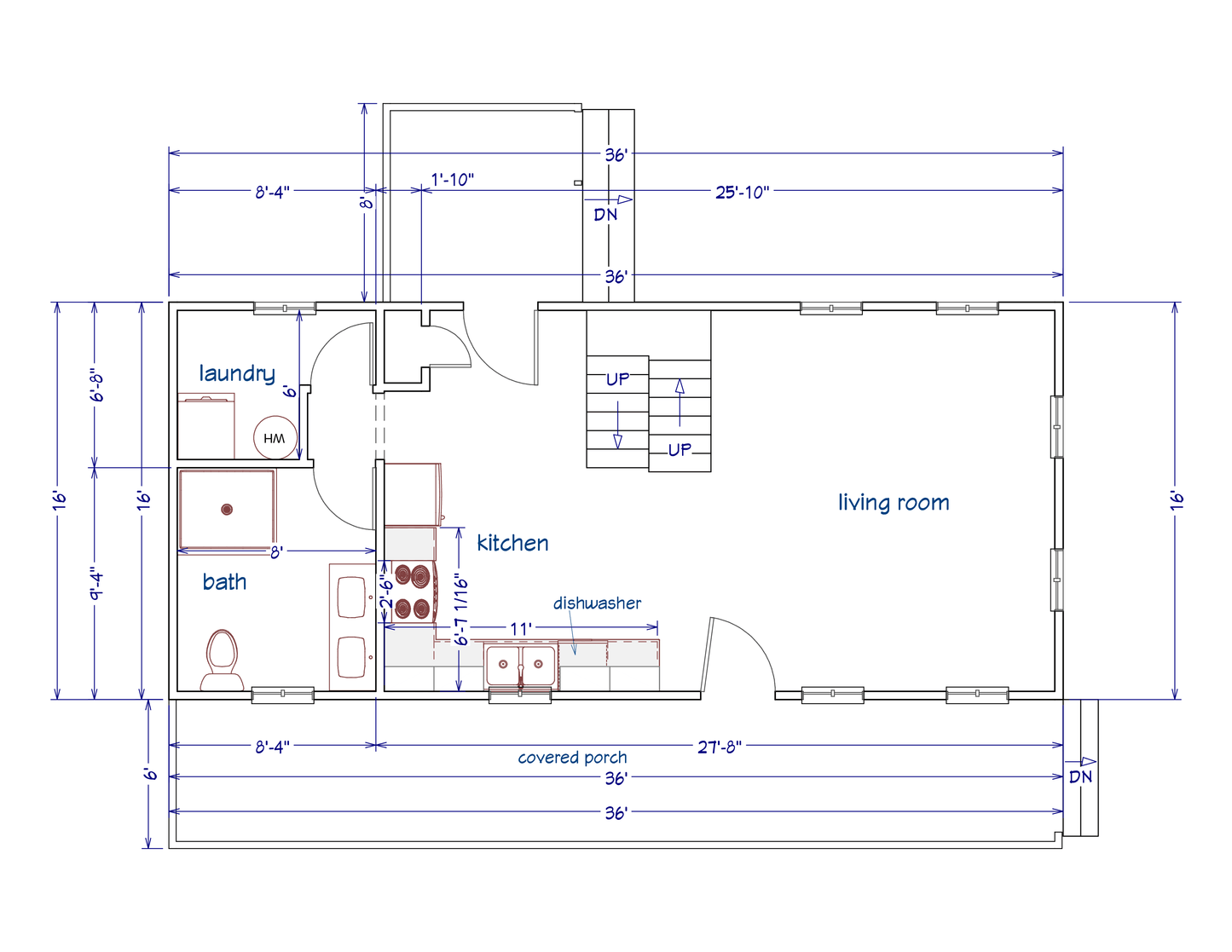
Plan #203 – “Big Bertha Cabin” | 2 Story, 2 Bed + 2 Loft Bedrooms, 1 Bath (864 Sq Ft)
Plan #203 – “Big Bertha Cabin” | 2 Story, 2 Bed + 2 Loft Bedrooms, 1 Bath (864 Sq Ft)
Couldn't load pickup availability
Share
Say hello to Plan #203, our famous Big Bertha Cabin—a stunning two-story design that offers both space and style in a smart 16' x 36' footprint. With two cozy lofted bedrooms upstairs and a full bedroom, bathroom, kitchen, and living area downstairs, this plan blends function with rustic luxury.
Relax on the beautiful covered 6’ x 36’ front porch, perfect for your morning coffee or evening wind-down. Whether it's a forever home, rental property, or vacation retreat—Big Bertha delivers.
🌟 Now Starting at Just $145,900!
(Regularly $155,900 – limited-time offer)
Price is fully turnkey, plug-and-play ready. Shipping and code-specific modifications vary—call us for your custom quote.
Built for comfort. Designed for life. Trusted Amish craftsmanship at its finest.
📞 Call 800-513-1675 today to lock in this deal and make the Big Bertha Cabin yours!
